People Are Asking

The "30% Drawings" of City Hall

The commission approved the "30%" city hall drawings and the timeline to proceed to the next phase of design "schematics" (the next phase of design).

Observations of the 3-26-25 city hall drawings

View the new plans here.

This plan is a significant advance over the original concept but People Are Asking several questions about this plan as well:

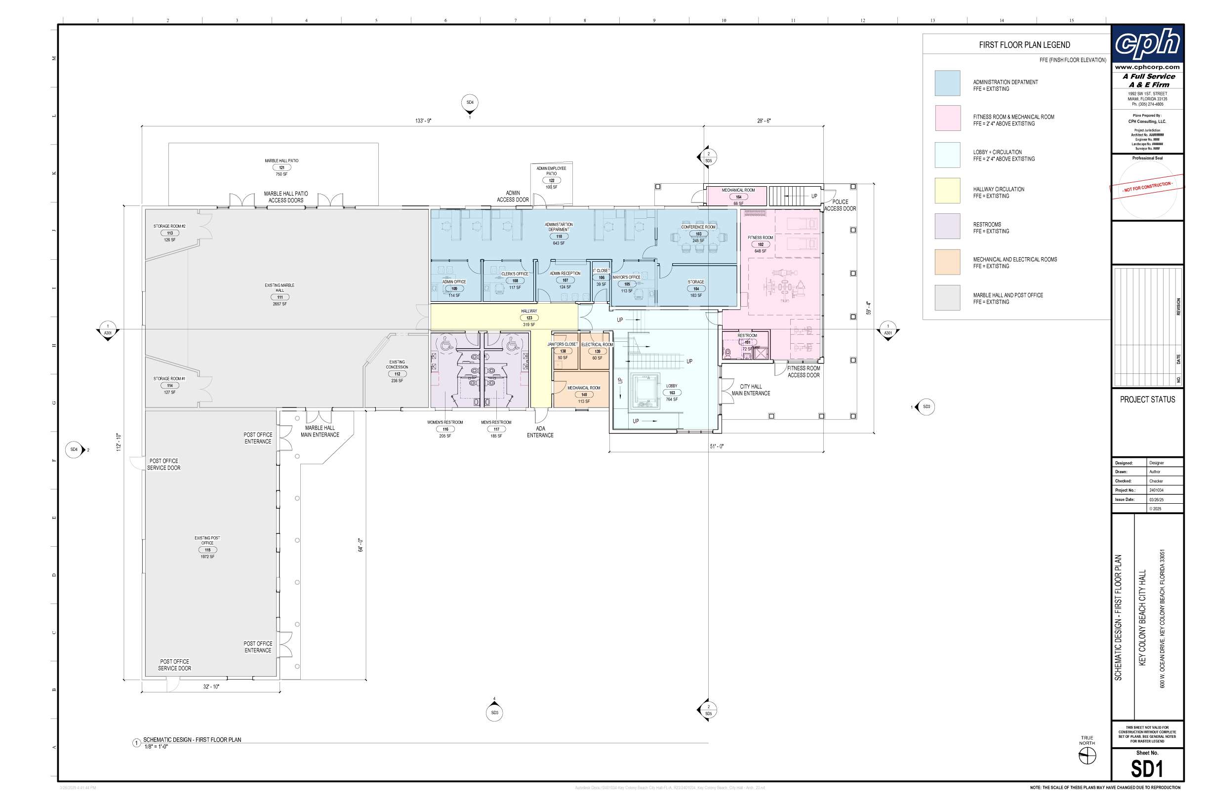
    Ground Floor
    3-26-25 City Hall first floor plan

  • There are no stairs or ramp shown to the entrance veranda. How are people supposed to climb up to the lobby, the 720 s.f., "fitness room," and the stairs leading to the second floor?
  • Why is there a 764 s.f. entrance lobby to serve only the police department and building department if the admin area has its own ground level (ADA) entrance?
  • A still-unanswered question: Why are the administrative offices are completely isolated from the public, reached only through a gatekeeper office with a closed door from the hallway and a second closed door into the office area?
  • A still-unanswered question: Why does administrative office access through the lobby still require climbing four or more steps to the lobby elevation and then going down four or more stairs to the admin floor.
  • The floor plan shows eight offices plus room for two or more cubicles plus a reception desk. How much staff is this administration planning to add?
  • A still-unanswered question: Why is there no locker or changing space in the non-ADA fitness room bathroom? And why not arrange the design so the gym shares bathrooms with Marble Hall and the administrative space?
  • A still-unanswered question: Why is the only ground floor records storage room below Base Flood Elevation?
  • Why does the new tower and addition (and the unshown ramp and stairs at the entry) usurp some of the crowded driveway?
  • FEMA explicitly allows floodproofing as one option to mitigate damage of commercial buildings in hazard zones.
  • Whether you call it a "tower" or not, there is still a real concern that changing the roofline that much is not harmonious in character and appearance with existing buildings in the neighborhood.

  • Second Floor
    3-26-25 City Hall second floor plan

  • Why does the second floor have an open balcony overlooking the lobby? The open atrium design is pretty but a tremendous waste of space (and construction cost).
  • A still-unanswered question: Why are there additional mechanical and electrical rooms on the second floor?
  • The second floor bathrooms have locker and changing space for four police officers. Why is there no space for showers?

  • Other Issues
    This is not a Tower

  • A still-unanswered question: Whether you call it a "tower" or an "architectural element or feature of the proposed expansion, [that] does not have any correlation with the finish floor elevation," there is still a real concern that changing the roofline that much is not harmonious in character and appearance with existing buildings in the neighborhood. People Are Asking why the city commission is ignoring that city ordinance?
  • A still-unanswered question: Why don't the "design schematics" include value engineering?
  • A still-unanswered question: With commercial construction costing some $500 per square foot in the Keys why are we planning to spend nearly a million dollars for lobbies, an "open atrium" and a gym?
"Schematic " drawings are still ideas to be discussed between KCBers, the commissioners, and the architect. There will be many more questions as we examine the plans more closely.
Click or tap here to email the commissioners and city clerk to ask these and other questions about the plans.

Read the Key Colony Beach Special City Commission Meeting Agenda Packet here.
See the conceptual city hall floorplan here.

City Hall Index