Keeping Marble Hall and the Post Office ... and
Building a New and Raised Administration Wing

This proposal shows what city hall could look like from the parking lot, the same view most of us saw going into the post office that we used into 2023. There are two, althernate floorplans showing all the necessary interior spaces. It meets the current, legal flood zone AE-7 requirements.


The design meets all the design criteria and is "harmonious." That's the good news.

This proposal keeps Marble Hall and the post office wing. It knocks down the oldest administrative section and the newer, two-story building department, then builds a two-story office space and EOC. The floorplans show space usage, have room for expansion, put the police department and city records upstairs, and generally have everything but an elevator or a gun tower. And the city hall park remains untouched. We hope they'll repave the parking lot, though. Here's what it would look like from the air.


If the voters want to do more than repair the existing building, this is a decent alternative. It looks the part and fits all the staff. It can be built for a realistic $5.8 million. That's actually a little less that the anticipated cost to repair and upgrade the existing City Hall.

Couda, shoulda, woulda. If the city commission had done this in 2018 instead of going for gun towers and the shopping mall, it would have cost just $2.5 million and we would still have all the $1.5 million they've spent engineering a fraud and renting trailers that we could use for the overruns and even some fluff. That's the worse news, although as we noted in "coulda shoulda woulda" it pretty much seals their political fate.

Here are the design criteria:

• Meet the City requirement that the "architectural style and building materials" of new construction "are harmonious in character."
• Maintain Marble Hall.
• Meet or exceed AE-7 flood zone elevation requirements still in effect now.
• Meet the space requirements listed by employees, residents, and the police department.
• Meet the needs for secure records storage and on-site utilities.
• Maintain the exact footprint of the original building.
• Maintain a similar appearance to the original building with "stacked bond" CBS construction.
• Offer offices with windows for the current staff.
• Enlarge the P.D./EOCspace.
• Provide separate wasroom and locker space for P.D.
• Create two flexible "conference room" spaces, combinable into one "commission room."
• Maintain the existing post office.
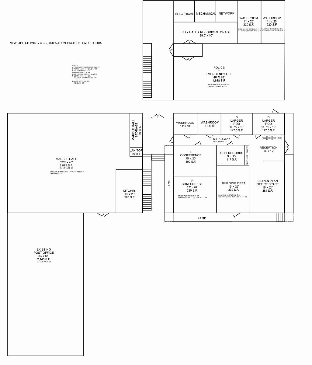
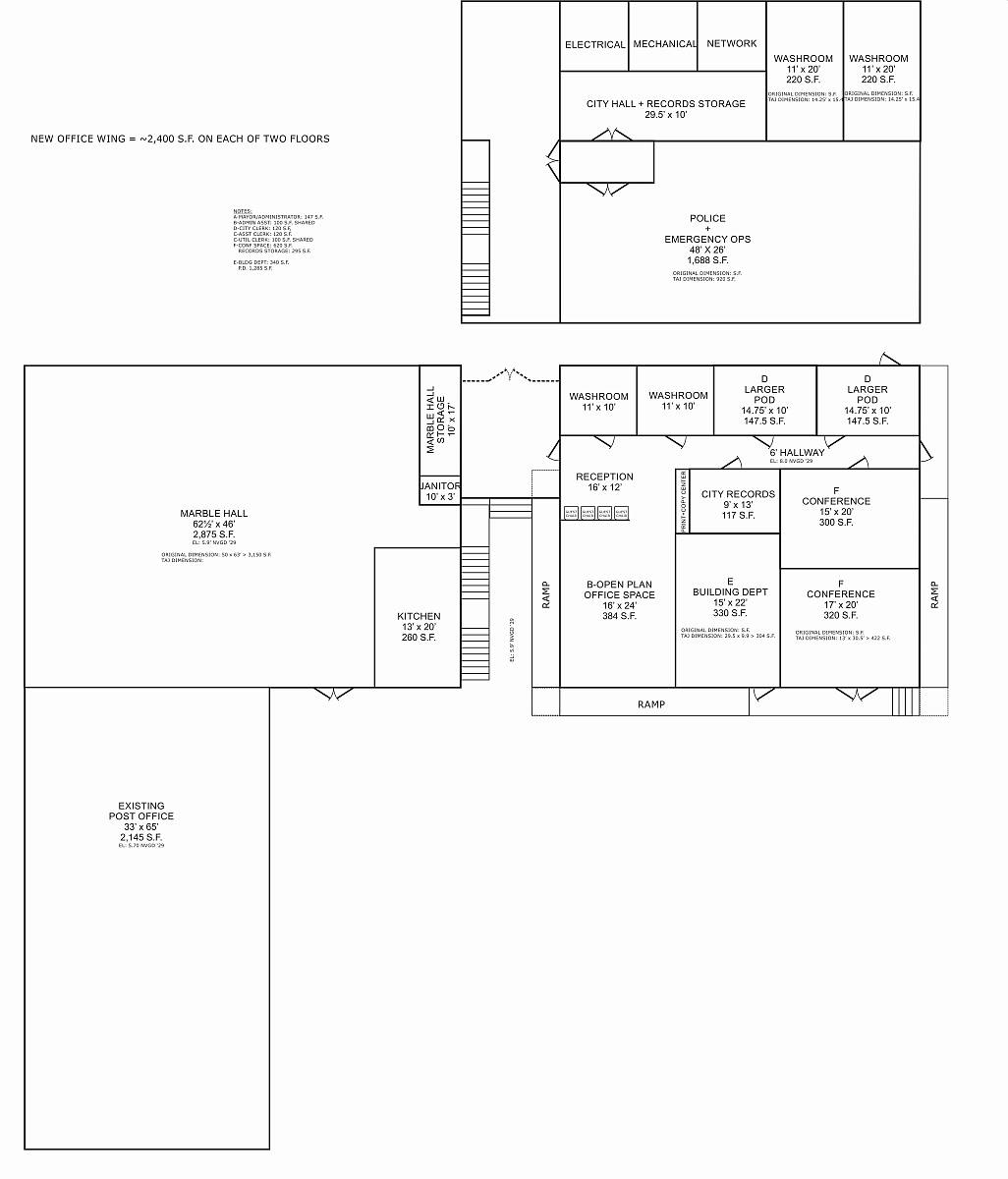
We have two suggested floorplans. This floorplan has the reception area on the breezeway shared by the office space and Marble Hall with the conference rooms beside the West Ocean Drive entrance to the building.

The second suggested floorplan has the reception area on the West Ocean Drive side of the building and the conference rooms on the breezeway shared with Marble Hall.

Worth noting is the simple fact that six years of delay have nearly doubled construction costs.

In today's inflated economy, this project is now likely to cost around $5.8 million. (That's still as much as $13 million "cheaper" than the building the City put out for bids.) The right answer is to develop new plans and request legitimate bids for each alternative.


COMMENTARY

"For that money the texting building could have a modern look"

The aim here was not for modernity but rather to mirror and blend with the existing structure.

"Looks like an apartment Building. Ugly."

Blame the look on the sketch, not on the concept. A finished architectural proposal will look better.

| HOME |